Regent’s Park – Sharik

  • Home
  • Regent’s Park – Sharik
Go Back
Report Abuse
Screenshot (73)
IMG-20251012-WA0042
IMG-20251012-WA0043
IMG-20251012-WA0040
WhatsApp Image 2025-10-12 at 18.22.00_51defe90
Screenshot (74)
Screenshot (75)

Regent’s Park – Sharik

East Cairo

A premium administrative and commercial environment surrounded by landmark developments including Mivida, SODIC East, and The Westin Hotel.

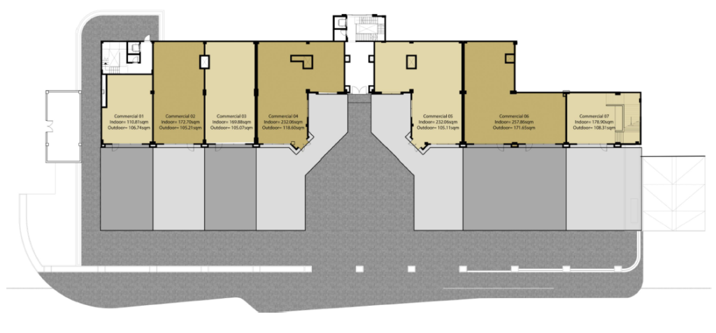
This fully finished office space spans 1,906 sqm gross area (1,400 sqm net) on a single floor and is ready for immediate occupancy. The property features 20 dedicated parking spots along with shared parking access, ensuring convenience for tenants and visitors alike.

Key Details:

Project: Regent’s High Street by Al Dawlia Real Estate

Location: Northern 90th Street, Downtown – Fifth Settlement, AUC Avenue

Total Area: 1,906 sqm (Gross) | 1,400 sqm (Net)

Finishing: Fully Finished | Fully Furnished & Serviced Option Available

Asking Rent Price:

USD 33/sqm (Fully Finished)

USD 40/sqm (Fully Furnished & Serviced — includes receptionist, cafeteria, and housekeeping)

USD 3/sqm Maintenance Charge

20 Parking Spots + Shared Parking

Current Tenants:

Kraft Heinz HQ, Coffee Lab, The Great Greek

 

Location

Contact Information

Author Info

Avatar

ERA

Member since 5 months ago
View Profile

Contact Listings Owner Form

Request a call back